Jumelé Cottage 24′ X 30′

Jumelé Cottage 24′ X 30′2019-01-30T20:02:35+00:00

Project Description

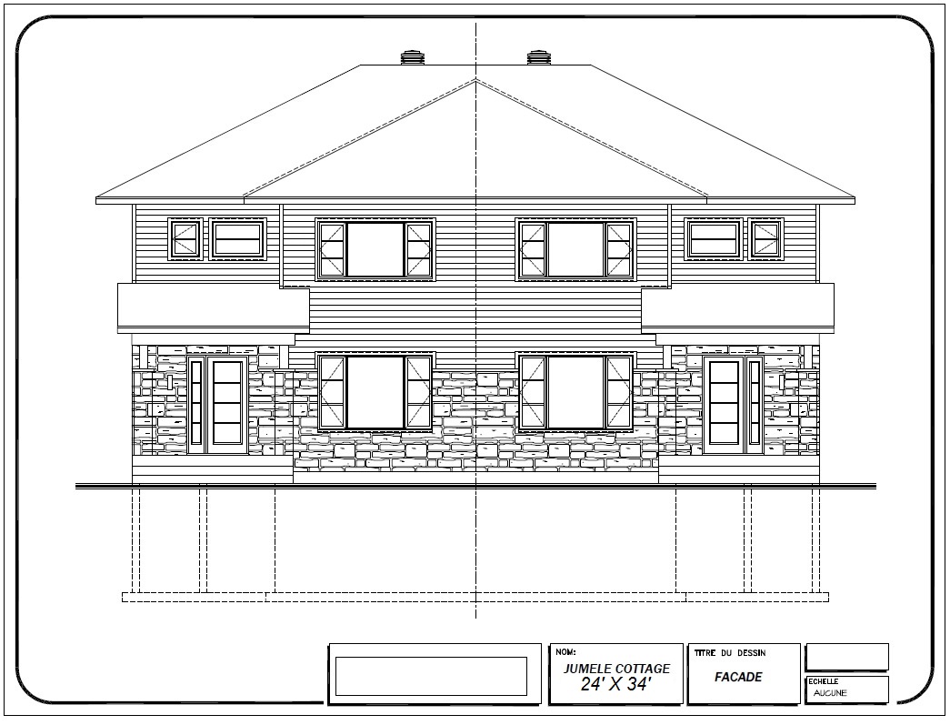
Jumelé à Lévis

Magnifique jumelé split 24′ X 35′ situé sur le Chemin Harlaka à Lévis.

Un design soigné avec son revêtement de pierres taillées sur plus de la moitié de la façade et ses fenêtres carrellées.

Autres photos

Plans

Pour tous les détails, appelez au

418 265-8554

Articles récents

Coordonnées

123 Chemin Harlaka

Phone: 418 265-8554

Web: http://levika.ca