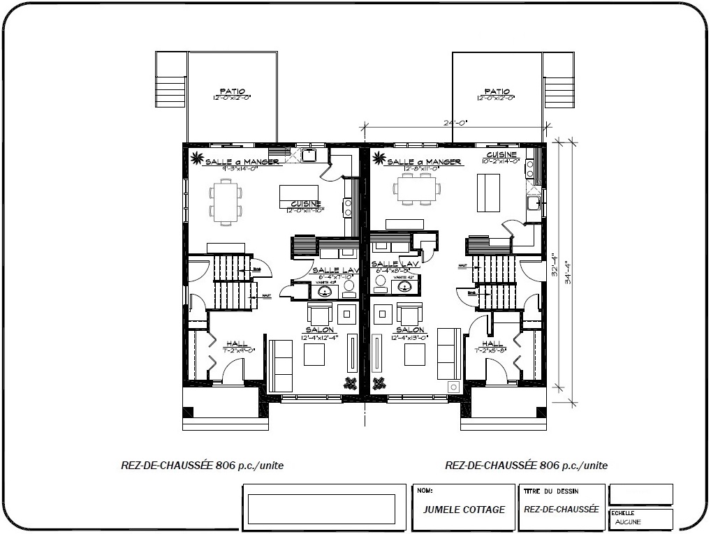
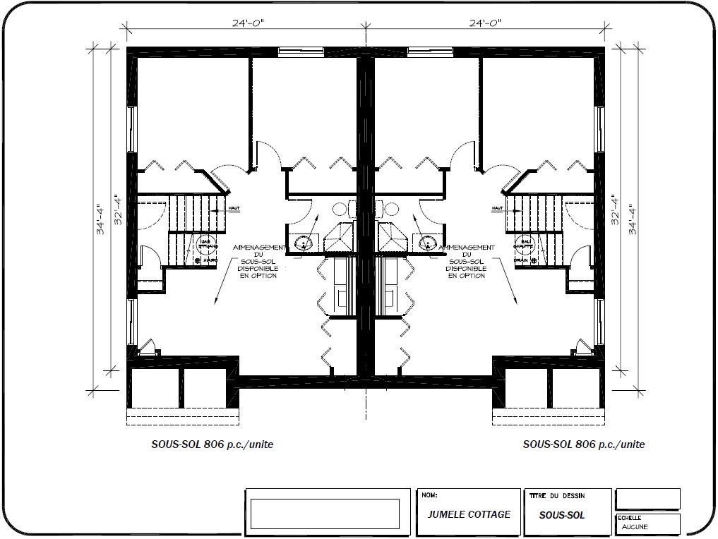
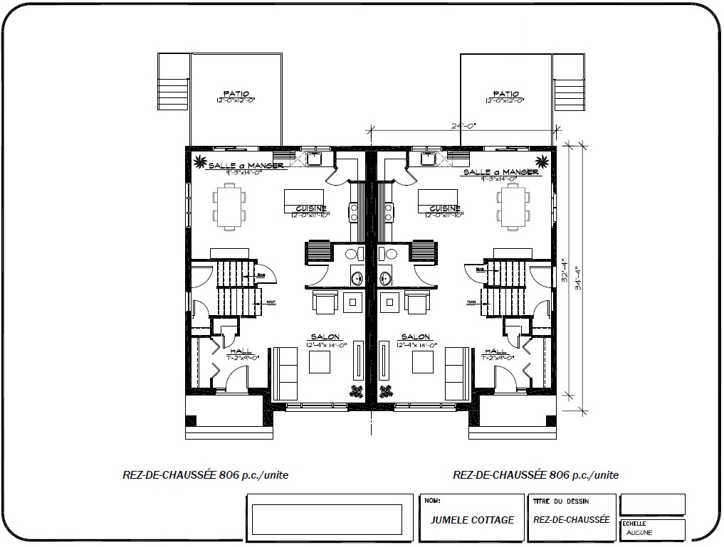
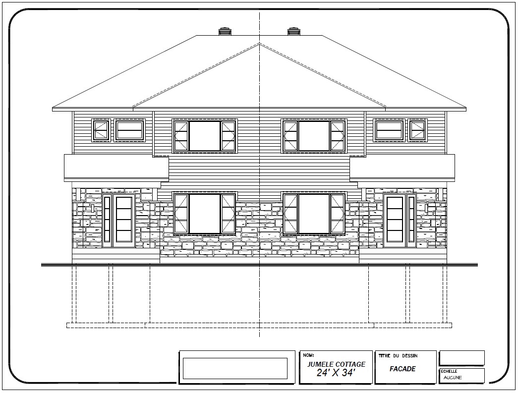
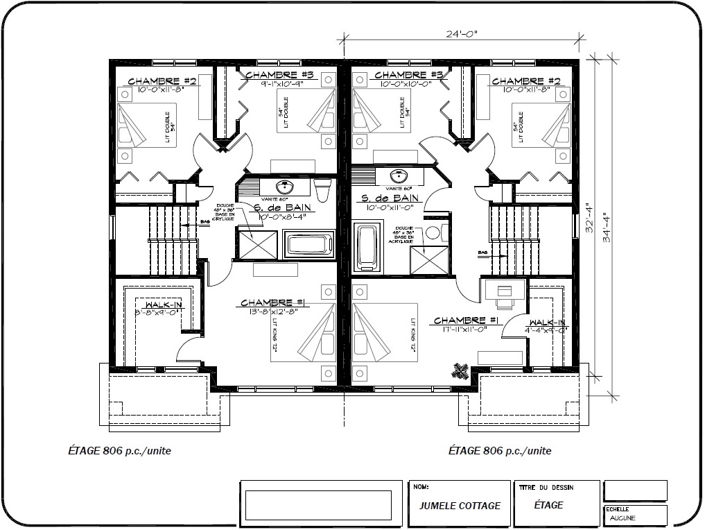
Jumelé Cottage 24′ X 34′danny2019-01-30T20:07:42+00:00 Project Description Magnifique jumelé split 24′ X 35′ situé sur le Chemin Harlaka à Lévis. Un design soigné avec son revêtement de pierres taillées sur plus de la moitié de la façade et ses fenêtres carrellées. Autres photosPlans Pour tous les détails, appelez au418 265-8554 Partagez cette découverte ! FacebookTwitterGoogle+Email